
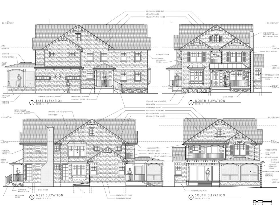
PRIVATE RESIDENCE - Ridgewood, NJ
The design for this large remodel/addition home economically utilized the framing and foundations of the existing one-level cape. It features an open main floor plan, rear screen porch, three bedrooms + luxurious owner's suite, and walk-up attic. A large, finished basement contains a sewing/crafting area, workshop, laundry room, storage and mechanical spaces, and a play area for grandchildren.
Based largely on the Shingle style, but with elements of traditional country homes as well, the house relates well to both its neighborhood context and the family’s lifestyle. The home is calm and peaceful, not overpowering. The house is organized around an axial corridor that leads from the front porch and entry door into the living and dining rooms, through the great room and out onto the rear porch, creating a desirable flow for entertaining.
Truly a family-oriented home, the kitchen and rear great room are spacious for hosting large gatherings and comfortably sized for daily living. With ample rear glazing, the home opens onto a covered porch and private views of the rear gardens and pool terrace, integrating indoor and outdoor spaces. The design includes an tastefully scaled matching garage and pool cabana.











